Lisboa, Vila Franca de Xira, Vila Franca de Xira, Bom Retiro
*** VISITAS SUSPENSAS***
Viver bem em Vila Franca de Xira começa aqui!
Se está à procura de um novo lar para dar um novo começo à sua vida, este apartamento reúne todas as condições necessárias para corresponder a essas suas expectativas.
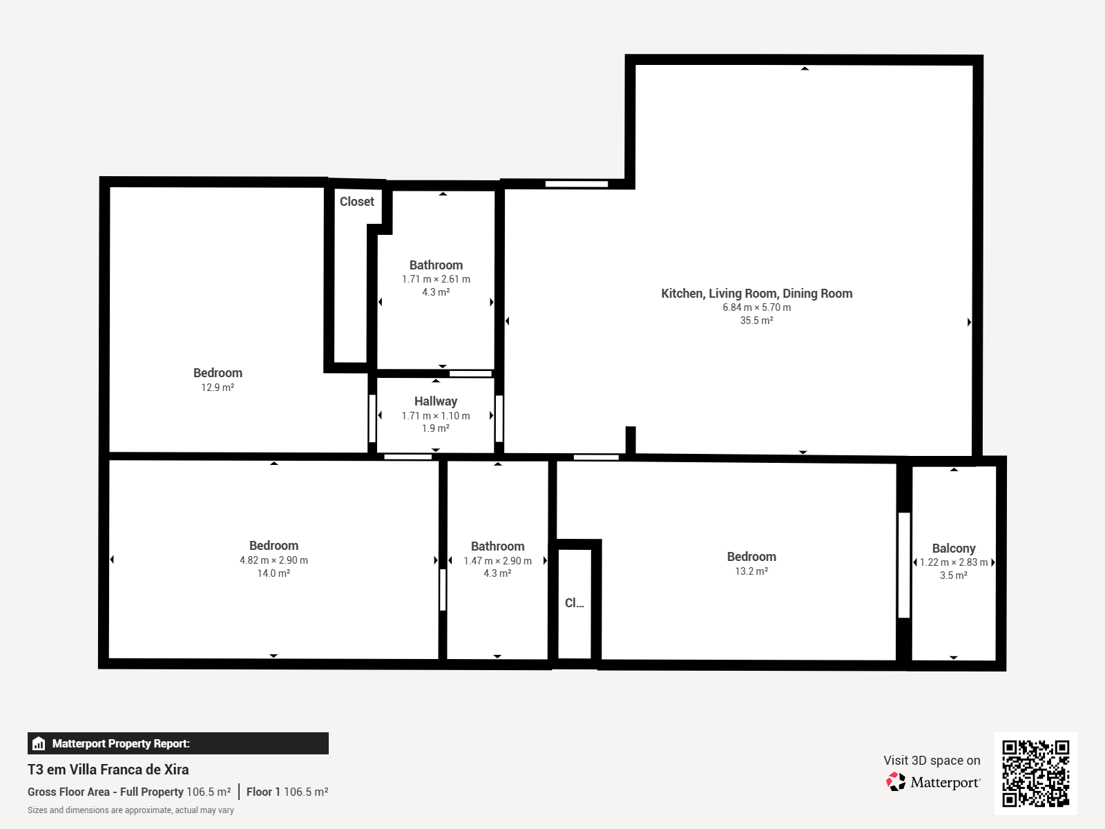
Combinação perfeita entre conforto, modernidade e tranquilidade. Com três quartos luminosos, um deles suíte, duas casas de banho renovadas e ar condicionado, cada detalhe foi pensado para proporcionar bem-estar no dia a dia.
A vista para a serra convida à serenidade, enquanto a localização privilegiada, a apenas 5 minutos da A1, Escolas nas proximidades, garante mobilidade e comodidade sem abdicar da calma de uma zona residencial tranquila.
Mais do que um imóvel, este é um espaço para criar memórias, descansar e viver com qualidade.
✨ Descubra onde a tranquilidade encontra a modernidade — o seu novo lar espera por si!